Планування квартир ЖК Comfort Club
Планування квартир ЖК Comfort Club
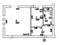
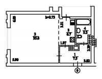
Планування 1-кімнатних квартир
Будинок 2
Продано
Поверх:
2
Загальна площа:
33.51 м2
Житлова площа:
16.9 м2
Кухня:
8 м2
Видалити з обраного?
Будинок 1
Продано
Поверх:
2
Загальна площа:
35.11 м2
Житлова площа:
20.41 м2
Кухня:
7.3 м2
Видалити з обраного?
Будинок 1
Продано
Поверх:
4
Загальна площа:
37.9 м2
Житлова площа:
13 м2
Кухня:
11.9 м2
Видалити з обраного?
Будинок 2
Продано
Поверх:
4
Загальна площа:
38.9 м2
Житлова площа:
21.9 м2
Кухня:
6.6 м2
Видалити з обраного?
Будинок 1
Продано
Поверх:
3
Загальна площа:
39.7 м2
Житлова площа:
20.2 м2
Кухня:
6.8 м2
Видалити з обраного?
Будинок 2
Продано
Поверх:
3
Загальна площа:
40.8 м2
Житлова площа:
21.9 м2
Кухня:
6.6 м2
Видалити з обраного?
Будинок 1
Продано
Поверх:
2
Загальна площа:
40.8 м2
Житлова площа:
20 м2
Кухня:
11.9 м2
Видалити з обраного?
Будинок 2
Продано
Поверх:
2
Загальна площа:
41.9 м2
Житлова площа:
24.1 м2
Кухня:
10.9 м2
Видалити з обраного?
Будинок 2
Продано
Поверх:
4
Загальна площа:
42.5 м2
Житлова площа:
13 м2
Кухня:
13.9 м2
Видалити з обраного?
Будинок 1
Продано
Поверх:
4
Загальна площа:
43.7 м2
Житлова площа:
13.6 м2
Кухня:
13.5 м2
Видалити з обраного?
Будинок 1
Продано
Поверх:
3
Загальна площа:
44.5 м2
Житлова площа:
10.7 м2
Кухня:
13.5 м2
Видалити з обраного?
Будинок 1
Продано
Поверх:
2
Загальна площа:
44.8 м2
Житлова площа:
13.8 м2
Кухня:
10.6 м2
Видалити з обраного?
Будинок 1
Продано
Поверх:
4
Загальна площа:
45.2 м2
Житлова площа:
13 м2
Кухня:
11.9 м2
Видалити з обраного?
Будинок 2
Продано
Поверх:
3
Загальна площа:
46.3 м2
Житлова площа:
16.8 м2
Кухня:
10.7 м2
Видалити з обраного?
Будинок 2
Продано
Поверх:
4
Загальна площа:
46.4 м2
Житлова площа:
16.8 м2
Кухня:
10.4 м2
Видалити з обраного?
Будинок 2
Продано
Поверх:
4
Загальна площа:
46.8 м2
Житлова площа:
26.7 м2
Кухня:
5.9 м2
Видалити з обраного?
Будинок 2
Продано
Поверх:
3
Загальна площа:
46.9 м2
Житлова площа:
26.8 м2
Кухня:
5.9 м2
Видалити з обраного?
Будинок 1
Продано
Поверх:
3
Загальна площа:
48.7 м2
Житлова площа:
20.8 м2
Кухня:
9.2 м2
Видалити з обраного?
Будинок 2
Продано
Поверх:
2
Загальна площа:
48.8 м2
Житлова площа:
15.5 м2
Кухня:
13.5 м2
Видалити з обраного?
Будинок 2
Продано
Поверх:
3
Загальна площа:
50.9 м2
Житлова площа:
21.6 м2
Кухня:
10.9 м2
Видалити з обраного?
Будинок 2
Продано
Поверх:
2
Загальна площа:
51 м2
Житлова площа:
24.1 м2
Кухня:
10.9 м2
Видалити з обраного?
Будинок 1
Продано
Поверх:
4
Загальна площа:
56.6 м2
Житлова площа:
35.6 м2
Кухня:
6.7 м2
Видалити з обраного?
Будинок 1
Продано
Поверх:
3
Загальна площа:
56.9 м2
Житлова площа:
36.5 м2
Кухня:
6.4 м2
Видалити з обраного?
Будинок 1
Продано
Поверх:
2
Загальна площа:
57.3 м2
Житлова площа:
35.5 м2
Кухня:
7.1 м2
Видалити з обраного?
Планування 2-кімнатних квартир
Будинок 2
Продано
Поверх:
1
Загальна площа:
49.1 м2
Житлова площа:
27 м2
Кухня:
10.6 м2
Видалити з обраного?
Будинок 2
Продано
Поверх:
1
Загальна площа:
59 м2
Житлова площа:
23 м2
Кухня:
15.3 м2
Видалити з обраного?
Будинок 1
Продано
Поверх:
1
Загальна площа:
59.5 м2
Житлова площа:
34.4 м2
Кухня:
10 м2
Видалити з обраного?
Будинок 2
Продано
Поверх:
5
Загальна площа:
67.7 м2
Житлова площа:
27 м2
Кухня:
23.5 м2
Видалити з обраного?
Будинок 1
Продано
Поверх:
1
Загальна площа:
71.1 м2
Житлова площа:
24.4 м2
Кухня:
24.7 м2
Видалити з обраного?
Будинок 2
Продано
Поверх:
5
Загальна площа:
71.5 м2
Житлова площа:
26.3 м2
Кухня:
34 м2
Видалити з обраного?
Будинок 1
Продано
Поверх:
5
Загальна площа:
82.2 м2
Житлова площа:
30.1 м2
Кухня:
37.2 м2
Видалити з обраного?
Будинок 1
Продано
Поверх:
5
Загальна площа:
83.4 м2
Житлова площа:
30.1 м2
Кухня:
37.2 м2
Видалити з обраного?
Плани поверхів
Не знайшли якусь інформацію?
Ціни від забудовника
За квартиру
від
1 900 000 грн
від
72 575 $
За м2
35 250 - 41 150 грн
1 347 - 1 572 $
Розтермінування
Рассрочка на индивидуальных условиях
Детальніше про розтермінування
Кінець будівництва
введено в експлуатацію в 3 кв. 2017
Відгуки про ЖК Comfort Club
Залишити свій відгук
Залишити свій відгук
Акції забудовників
м. Київ, вул. Північно-Сирецька
Сирець
від 1 410 000 грн
від 53 858 $
(від 20 950 грн/м2)
(від 801 $/м2)
Видалити з обраного?
м. Київ, вул. Берковецька, 6
від 1 170 000 грн
від 44 691 $
(від 33 550 грн/м2)
(від 1 282 $/м2)
Видалити з обраного?
м. Київ, вул. Академіка Заболотного, 1
Виставковий центр
від 1 400 000 грн
від 53 476 $
(від 37 550 грн/м2)
(від 1 435 $/м2)
Видалити з обраного?
м. Київ, вул. Михайла Максимовича (Трутенка), 24
Васильківська
від 1 270 000 грн
від 48 511 $
(від 36 900 грн/м2)
(від 1 410 $/м2)
Видалити з обраного?